Home
Over Mutsaars
Dienstverlening
Projecten en referenties
Contact
{project}
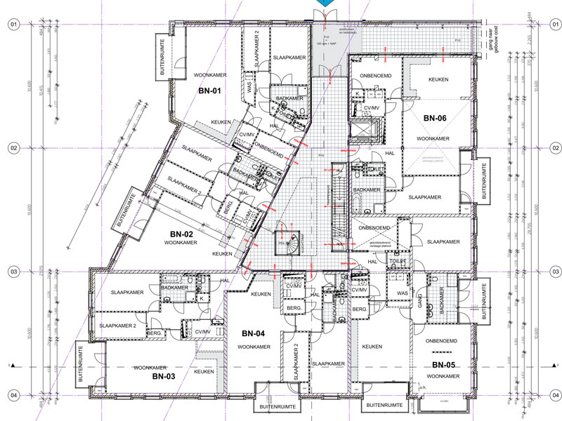
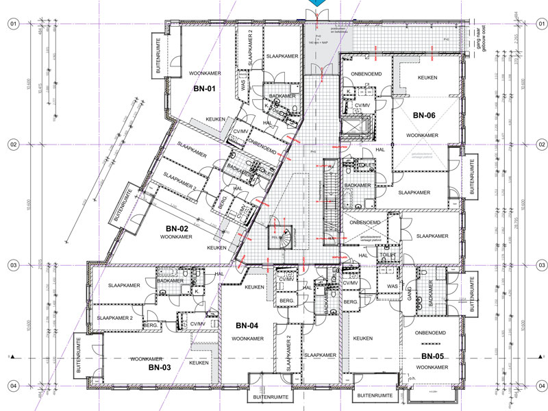
44 Appartementen "De veense Tuin" Roelofarendsveen
Home
Projecten en referenties
Aannemer: Bouwbedrijf Volker Wessels Zeist
Wij kijken graag wat we voor u kunnen betekenen!
CONTACT OPNEMEN
Contact
+31(0)73-6561637
info@mutsaarsbv.nl
Openingstijden
Ma - Vr
9:00
-
17:00
Za - Zo
Gesloten
Handige links
Privacyverklaring klanten
Privacyverklaring inhuurpersoneel
©
Mutsaars Project Afbouw B.V -
Alle ondernemers GROOTS online met een site
van webdesign bureau GraagGoedOnline.nl
Share by: